伊東市 伊豆急東大室台:7800万円
物件情報日本一の伊豆太陽ホームです。

マンション購入するなら情報量日本一の伊豆太陽にお任せください!
熱海、湯河原、伊豆高原など、伊豆の中古別荘・リゾートマンション・
家・土地・ペンション・民宿なんでもいらっしゃい!クチコミ情報も満載!
温泉付き物件も条件検索で簡単に探して見つける事ができる不動産!

お電話によるお問合わせはこちら【0558-23-4511】営業時間-9:00~18:00
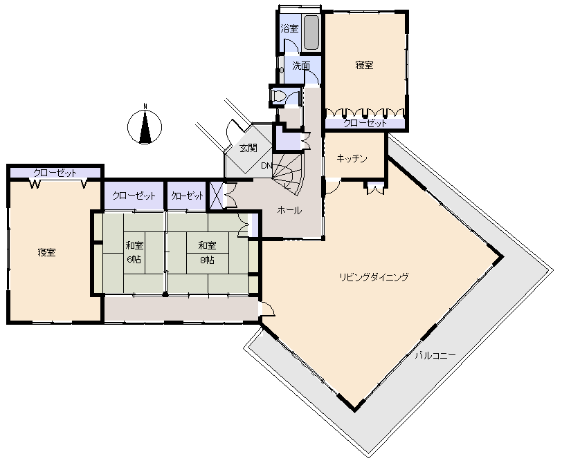
HOME >> 伊東市 伊豆急東大室台の間取り、または地形

伊東市 伊豆急東大室台の間取り、または地形


物件NO ITM344H   伊東市 伊豆急東大室台  
7800万円
所在地 静岡県  
交通 最寄り駅:城ヶ崎海岸駅 2.1km 車で5分   
土地 地目:山林 地積:3348平方メートル(1012.77坪)    
建物 木造 スレート葺 平屋建 築年数:46.4年 間取り:4LDK  床面積:222.58㎡(67.33坪)   
間取り
または地形
伊東市 伊豆急東大室台の間取り、または地形
※図面と現況に相違がある場合は現況を優先いたします。
  
伊豆太陽ホーム情報
熱海店:
〒413-0011 静岡県熱海市田原本町6-7 角屋ビル2F
  TEL:0557-86-4150 FAX:0557-83-4835
下田店:
〒415-0021 静岡県下田市1丁目1-5 ホワイトビル2F
  TEL:0558-23-4511 FAX:0558-23-6110
● ホーム   ● 会社概要 ● サイトマップ ● プライバシーポリシー ● クッキーポリシー お問い合わせ
伊豆大好き人間応援企業【伊豆太陽ホーム】
(C) Copyrights Izu Taiyo home Co., Ltd.